The Pointe at Twin Hickory

  • Condos
  • From the Upper $200s
  • Bedroom icon beige1 - 3
  • Bathroom icon beige1.5 - 3.5
  • Beige square footage icon for new homes1,116 - 2,207

Condominium Homes | From the Upper $200s

  • 1 - 3
  • 1.5 - 3.5
  • 1,116 - 2,207

Donovan - The Pointe at Twin Hickory MLS# 2602129 | Homesite:  101 Bldg 1
5405 Raysdale RD #101, Glen Allen, VA 23059

Available In May

  • Top home builder bedroom icon3
  • New homes for sale bathroom icon 3.5
  • New homes for sale square footage icon1,605
  • Garage icon representing top home builder quality1

$441,525 Mortgage Calculator

Operation hours icon for home salesSchedule a home tour

Sales Advisor Laura Ellis

Online Sales Advisor:

Laura Ellis 804.352.2874

  • Floorplans
  • Additional Information
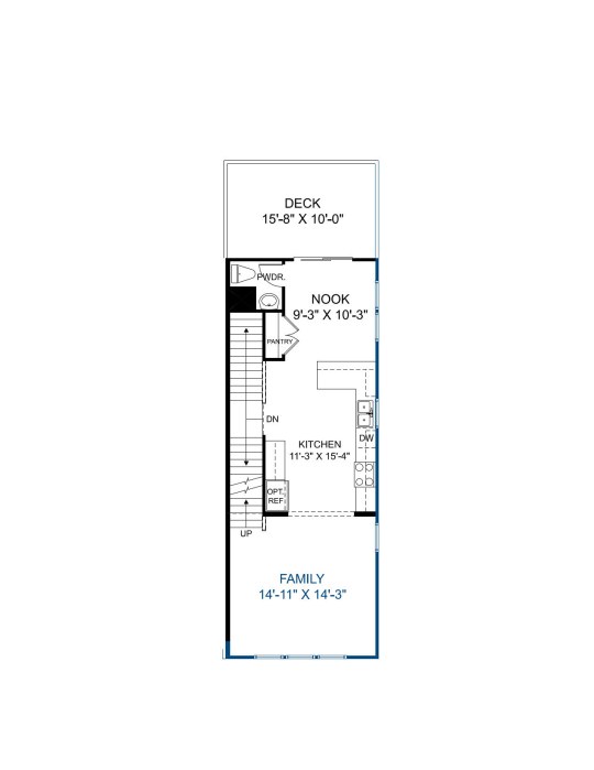
  • First Floor
  • Second Floor
  • Third Floor

MOVE-IN THIS SPRING! Meet the Donovan, a BRAND-NEW FLOOR PLAN, in The Pointe at Twin Hickory. The END UNIT Donovan offers 3 bedrooms, 3.5 baths and a thoughtfully crafted open floor plan. The chef's kitchen features quartz counters, gas cooking, plenty of counterspace and a dedicated pantry for storage. Expand your living area outdoors on your spacious deck, just off the dining area. Your Primary Suite has loads of storage with double closets and an ensuite bath with double vanity and walk-in tile shower. Stop by to learn more about this brand-new floor plan! Introducing, The Pointe at Twin Hickory, a BRAND-NEW CONDO community nestled within the renowned Twin Hickory community. The Pointe at Twin Hickory is located in the heart of Short Pump. The Pointe will feature commercial and retail spaces, making this community a true, "live, work, play" destination. (Condo is under construction - Photos/visual tours are from builder's library & shown as an example only. Options will vary).


Metro Area: Glen Allen, VA
Homesite Number: 101 Bldg 1
Price: $441,525
Sq Ft: 1,605
Bedrooms: 3
Bathrooms: 3.5
Garages: 1
Home Type: Condos
Phone Number: 804.352.2874
County: Henrico
Schools:

Twin Hickory Elementary School

Short Pump Middle School

Deep Run High School